...

PROPOSED TERRACE DEVELOPMENT

Benij Nigeria Limited is proud to present its Proposed Residential Development, located at Plot No. 1038, Cadastral Zone C02, Gwarinpa 1 District, Federal Capital Territory, Abuja. This project exemplifies its commitment to delivering modern, functional, and sustainable residential solutions that combine comfort with architectural excellence.

Project Overview

The development has been carefully conceptualised to reflect contemporary living standards while maintaining a balance between luxury and practicality. Each aspect of the design enhances the quality of life for future residents, ensuring efficiency, privacy, and elegance.

Key Features

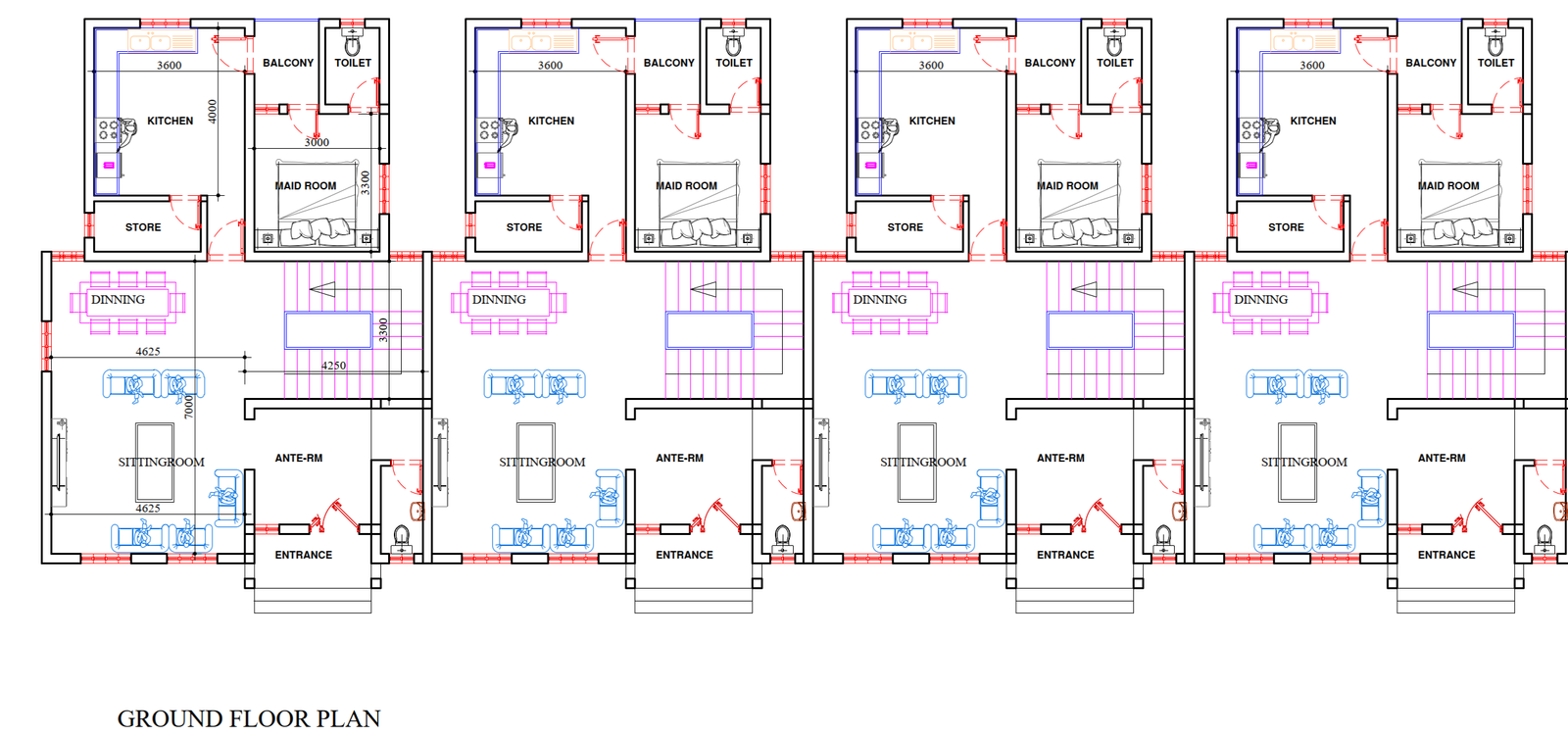
Ground Floor Plan

  • Welcoming entrance foyer leading to a spacious sitting and dining area.
  • Fully equipped kitchen with adjoining store.
  • Ante-room and maid’s room for added convenience.
  • Visitors’ toilet and balcony for relaxation.

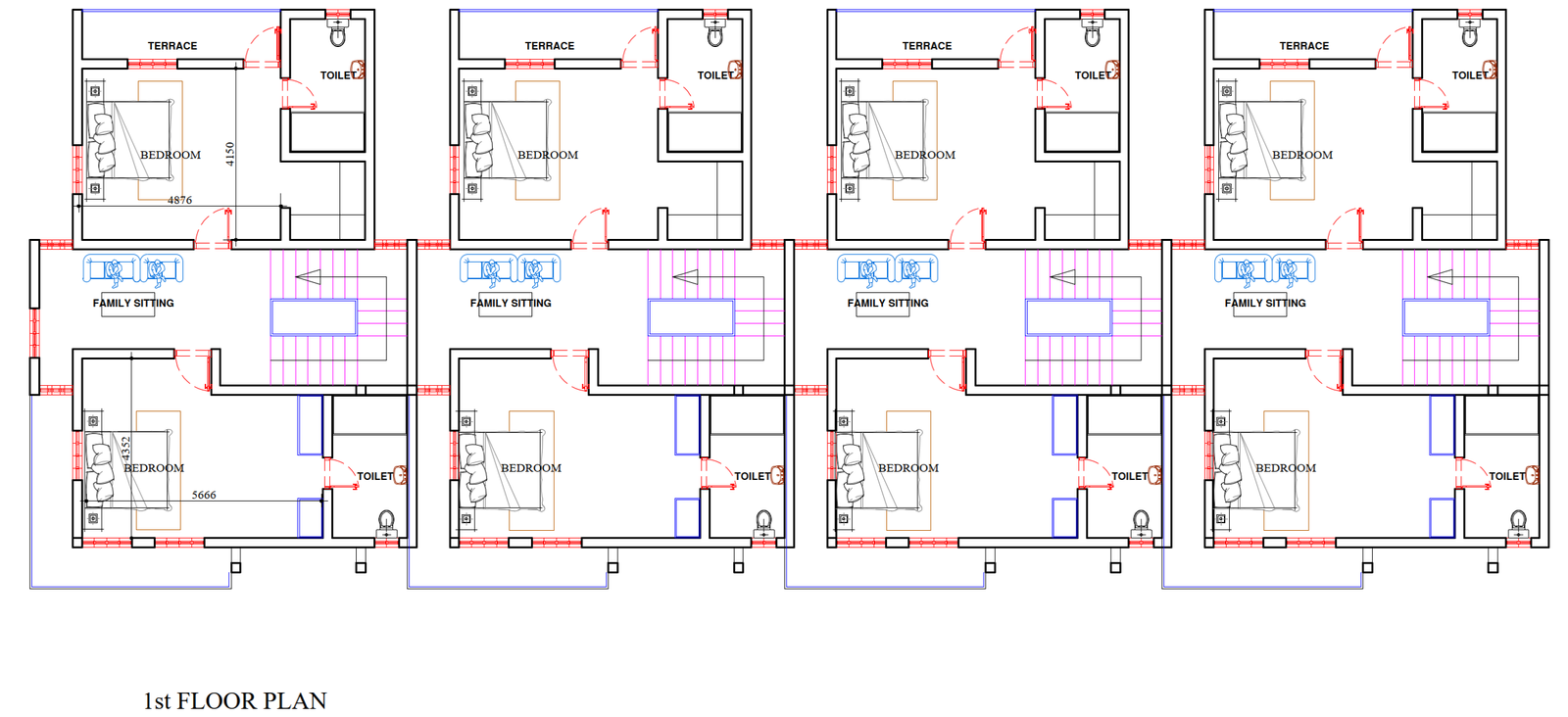
First Floor Plan

  • Multiple bedrooms, each with direct access to toilets.
  • A dedicated family sitting area for entertainment and bonding.
  • An expansive terrace that provides outdoor leisure space.

Second Floor Plan

  • Luxurious master’s bedroom and Madam’s bedroom with refined finishes.
  • Utility area for household management.
  • Access to a terrace with serene outdoor views.

Location Advantage

Situated in Gwarinpa District, one of Abuja’s most prestigious residential neighbourhoods, the development enjoys:

  • Excellent road networks and infrastructure.
  • Proximity to business hubs, schools, and healthcare facilities.
  • A secure and serene environment ideal for family living.

Architectural Vision

This project embodies a forward-thinking architectural approach that seamlessly combines functionality with elegance. Spacious interiors, natural lighting, and outdoor living areas such as terraces and balconies have been incorporated to create a home environment that supports comfort, relaxation, and modern lifestyles.

Project Info

Category:
Date: